Marche pieds MASTER

Publié le 18 Juillet 2011

 

post it vert menu master

 

 

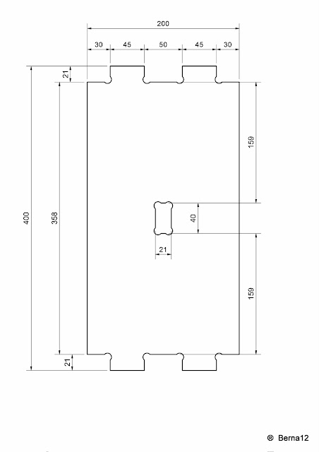
Traçage sur inventor et découpe à la commande numérique dans du contre plaqué de 21 mm

 

 

 

 

 

 

 

 

 

 

Rédigé par berna12

Publié dans #master

Commenter cet article